Elles.top » Дизайн » Откатные ворота самодельные

Откатные ворота самодельные

0 голосов
Откатные ворота 3м чертеж
1
Откатные ворота 3м чертеж

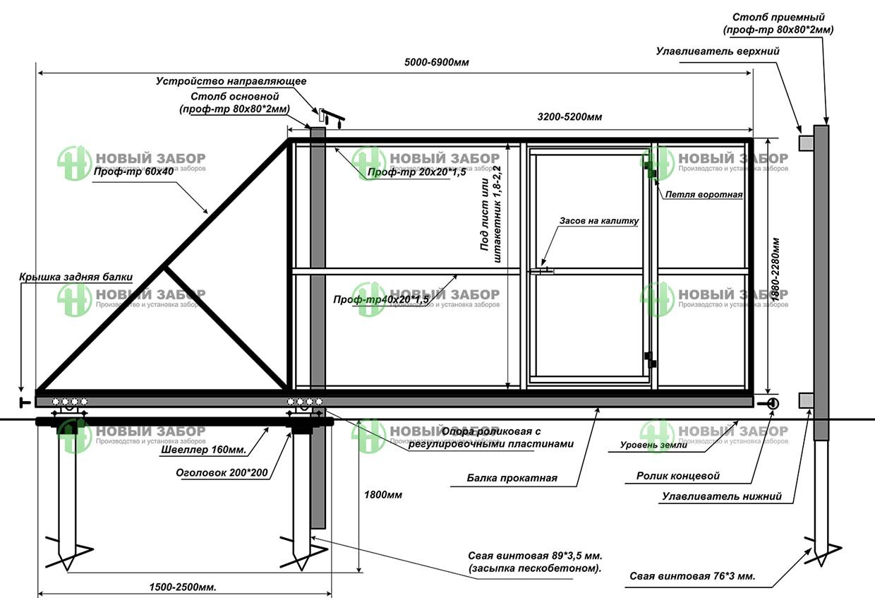
Чертёж откатных ворот проём 5м
2
Чертёж откатных ворот проём 5м

Чертёж откатных ворот проём 4м с размерами
3
Чертёж откатных ворот проём 4м с размерами

Ворота откатные 2.60
4
Ворота откатные 2.60

Ворота откатные механические
5
Ворота откатные механические

Откатные ворота на 207 подшипниках
6
Откатные ворота на 207 подшипниках

Откатные ворота 8 метров с чертежами
7
Откатные ворота 8 метров с чертежами

Ворота откатные подвесные снизу щель
8
Ворота откатные подвесные снизу щель

Сварка электродом откатные ворота
9
Сварка электродом откатные ворота

Яксель ворота откатные
10
Яксель ворота откатные

Каркас ворот откатных 4000*1800мм
11
Каркас ворот откатных 4000*1800мм

Откатные ворота из профильной трубы
12
Откатные ворота из профильной трубы

Откатные ворота 3м чертеж
13
Откатные ворота 3м чертеж

Каркас откатных ворот чертеж 4м
14
Каркас откатных ворот чертеж 4м

Откатные ворота с автоматикой чертеж
15
Откатные ворота с автоматикой чертеж

Навес для откатных ворот из профильной трубы
16
Навес для откатных ворот из профильной трубы

Откатные ворота с 20 металлические c20
17
Откатные ворота с 20 металлические c20

Бесконсольные откатные ворота
18
Бесконсольные откатные ворота

Нащельник для откатных ворот
19
Нащельник для откатных ворот

Раздвижные ворота на колесах
20
Раздвижные ворота на колесах

Консольные откатные ворота
21
Консольные откатные ворота

Откатные ворота 6000
22
Откатные ворота 6000

Откатные ворота на колесиках колесики снизу
23
Откатные ворота на колесиках колесики снизу

Откатные ворота со средней балкой Механол
24
Откатные ворота со средней балкой Механол

Откатные рельс ворота схема чертёж
25
Откатные рельс ворота схема чертёж

Откатные ворота ворота Яксель
26
Откатные ворота ворота Яксель

Ролтех откатные ворота
27
Ролтех откатные ворота

Ширина ворот 5.5 метров какая длина должна быть для откатных ворот
28
Ширина ворот 5.5 метров какая длина должна быть для откатных ворот

Каркас ворот откатных 4000*1800мм
29
Каркас ворот откатных 4000*1800мм

Раздвижные ворота Яксель
30
Раздвижные ворота Яксель

Схема монтажа фундамента для откатных ворот
31
Схема монтажа фундамента для откатных ворот

Откатные ворота 3м 1,5м
32
Откатные ворота 3м 1,5м

Раздвижные ворота во двор
33
Раздвижные ворота во двор

Каркас ворот откатных 4000х2000
34
Каркас ворот откатных 4000х2000

Чертеж откатных ворот Дорхан
35
Чертеж откатных ворот Дорхан

Откатные ворота на колесиках колесики снизу
36
Откатные ворота на колесиках колесики снизу

Откатные ворота на колесиках колесики снизу
37
Откатные ворота на колесиках колесики снизу

Откатные ворота по системе Якселя
38
Откатные ворота по системе Якселя

Бесконсольные откатные ворота
39
Бесконсольные откатные ворота

Откатные ворота Ирбис с электроприводом
40
Откатные ворота Ирбис с электроприводом

Консольные откатные ворота
41
Консольные откатные ворота

Каркас ворот откатных 4000х2000
42
Каркас ворот откатных 4000х2000

Каркас ворот откатных 4000*1800мм
43
Каркас ворот откатных 4000*1800мм

Откатные ворота на колесиках колесики снизу
44
Откатные ворота на колесиках колесики снизу

Привод для откатных ворот из стартера ВАЗ 2106
45
Привод для откатных ворот из стартера ВАЗ 2106

Откатные ворота 2 створки по верхней направляющей
46
Откатные ворота 2 створки по верхней направляющей

Откатные ворота на роликах сверху и снизу
47
Откатные ворота на роликах сверху и снизу

Откатные ворота механизм
48
Откатные ворота механизм

Технология каркаса для откатных ворот Дорхан
49
Технология каркаса для откатных ворот Дорхан

Ворота откатные с электроприводом чертеж
50
Ворота откатные с электроприводом чертеж

Регулировочные пластины для откатных ворот
51
Регулировочные пластины для откатных ворот

Схема установки привода распашных ворот
52
Схема установки привода распашных ворот

Чертеж откатных ворот 4м
53
Чертеж откатных ворот 4м

Откатные ворота 3700 1/2 противовес
54
Откатные ворота 3700 1/2 противовес

Каркас откатных ворот чертеж 4м
55
Каркас откатных ворот чертеж 4м

Ворота откатные Гардис пролетом 6000
56
Ворота откатные Гардис пролетом 6000

Откатные ворота снаружи
57
Откатные ворота снаружи

Закладные под откатные ворота DOORHAN
58
Закладные под откатные ворота DOORHAN

Откатные ворота Сергея Якселя
59
Откатные ворота Сергея Якселя

Автоматика Комунелло для откатных ворот
60
Автоматика Комунелло для откатных ворот

Чертёж откатных ворот проём 4м
61
Чертёж откатных ворот проём 4м

Откатные поворотные ворота
62
Откатные поворотные ворота

Откатные ворота 2 створки
63
Откатные ворота 2 створки

Консольные откатные ворота
64
Консольные откатные ворота

Установка откатных ворот схема установки
65
Установка откатных ворот схема установки

Каркас откатных ворот 6000/1500
66
Каркас откатных ворот 6000/1500

Простые сдвижные ворота
67
Простые сдвижные ворота

Привод откатных ворот Дорхан 2500-
68
Привод откатных ворот Дорхан 2500-

Откатные ворота 7500
69
Откатные ворота 7500
Больше дизайн идей:
Комментарии (0)
Кликните на изображение чтобы обновить код, если он неразборчив